售前:17276494626
售后:400-806-5128
产品介绍:
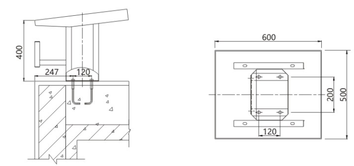
单级出发台WL-ACF01
二级出发台WL-ACF02
单级出发台WL-BCF02
Copyright©2020 LASWIM(威浪仕).All right reserved
技术支持: